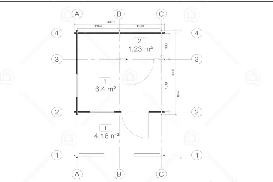
"Balaton" je malý drevený záhradný domček s rozlohou len 7,6 m2 a má sedlovú strechu. Je to skvelá voľba na malých pozemkoch. Tento záhradný domček môže byť použitý ako malý sklad, ako kancelária alebo dokonca ako miestnosť na odpočinok. Ak sa budova používa ako sklad, ľahko sa do nej zmestia police na náradie a vybavenie, pracovné odevy a iné veci. Môže byť tiež použitý ako miesto na uloženie bicyklov, kosačky na trávu alebo inej techniky, ktorá sa zmestí cez dvere. Tento záhradný domček sa môže stať aj kanceláriou alebo miestnosťou na odpočinok. Aj keď by malo byť všetko kompaktné, do miestnosti sa zmestia všetky pracovné potreby: stôl so stoličkou, police na predmety a dokumenty. Ak je miestnosť prispôsobená ako oddychová zóna, zmestí sa do nej kompaktná pohovka alebo iný kus nábytku na odpočinok po práci vonku. Na zvýšenie úrovne pohodlia má budova toaletu. K dispozícii je 4,5 m2 terasa na prednej strane domčeka. Dopĺňa a zdobí exteriér a tiež dáva príležitosť stráviť čas vonku pohodlným spôsobom.
Kontaktujte nás a my sa postaráme o návrh dreveného záhradného domčeka "Balaton" podľa všetkých vašich požiadaviek!












